Podłoga techniczna to rozwiązanie szeroko stosowane w różnych typach obiektów, w tym centrach danych, serwerowniach, biurach, laboratoriach, zakładach przemysłowych i szpitalach. Ukrywanie infrastruktury technicznej pod podłogą pozwala na lepsze zarządzanie przestrzenią, jednak niesie ze sobą ryzyko niewidocznych wycieków wody, które mogą prowadzić do uszkodzeń sprzętu, awarii instalacji i strat finansowych. W takich sytuacjach kluczowe znaczenie ma precyzyjna detekcja wycieków, która umożliwia szybkie podjęcie działań naprawczych.
Zagrożenia związane z zalaniem pod podłogą techniczną
Podłoga techniczna jest powszechnie stosowanym rozwiązaniem w centrach danych i serwerowniach, pozwalając na ukrycie przewodów zasilających, systemów chłodzenia oraz rur odprowadzających skropliny. Choć zapewnia to estetykę i uporządkowanie przestrzeni, jednocześnie stwarza ryzyko ukrytych wycieków, które mogą pozostawać niezauważone przez długi czas.
- Zalania z pomieszczeń sąsiednich. Jednym z głównych zagrożeń jest przenikanie wody z pomieszczeń sąsiednich. Może to wynikać z awarii rur w łazienkach, kuchniach lub pionach technicznych. Woda przenikająca do podłogi technicznej może rozprzestrzeniać się na całe pomieszczenie, uszkadzając krytyczne systemy.
- Rozszczelnienie rur doprowadzających wodę lodową do urządzeń chłodzących. Systemy chłodzenia w centrach danych opierają się na wodzie lodowej transportowanej rurociągami pod podłogą techniczną. Jakiekolwiek rozszczelnienie może skutkować wyciekiem, który w krótkim czasie może doprowadzić do zalania i awarii sprzętu. Woda lodowa nie tylko powoduje korozję i zwarcia w układach elektrycznych, ale także obniża efektywność chłodzenia.
- Uszkodzenia i zamulenie rur odprowadzających skropliny. Systemy klimatyzacyjne generują duże ilości skroplin, które muszą być skutecznie odprowadzane. Jeśli rury odprowadzające skropliny zostaną zatkane, uszkodzone lub rozszczelnione, woda może zacząć zbierać się pod podłogą techniczną, powodując zalania i rozwój pleśni.
Skuteczna detekcja wycieków wody za pomocą przewodu sensorowego TraceTek TT1000

W celu monitorowania przestrzeni pod podłogą techniczną i natychmiastowego wykrywania wycieków wody stosuje przewód sensorowy TraceTek TT1000. Jest to zaawansowany system liniowej detekcji wody, który pozwala na wykrycie kałuży już o wielkości 50 mm.
Przewód sensorowy TT1000 wykrywa wilgoć i wodę w dowolnym punkcie na swojej długości. Może być instalowany wzdłuż obwodu pomieszczenia, bezpośrednio pod rurociągami oraz w strategicznych miejscach wymagających monitorowania. W momencie kontaktu z wodą system generuje sygnał alarmowy, informując operatora o miejscu wystąpienia wycieku z dokładnością do jednego metra.
Zalety stosowania przewodu sensorowego TT1000
- Szybka reakcja – natychmiastowe wykrycie wycieku minimalizuje ryzyko uszkodzeń sprzętu.
- Dokładna lokalizacja wycieku – możliwość przypisania konkretnych stref alarmowych do przewodu sensorowego.
- Współpraca z systemami BMS – integracja z systemami zarządzania budynkiem umożliwia zdalne monitorowanie.
- Odporność na czynniki środowiskowe – przewód TT1000 jest odporny na wilgoć i korozję.
Jak ułożenie przewodu sensorowego wpływa na efektywność detekcji?
Ułożenie przewodu sensorowego TT1000 pod podłogą techniczną ma kluczowe znaczenie dla skuteczności detekcji. Przewód powinien być instalowany wzdłuż rurociągów wodnych, przy klimatyzatorach oraz wokół newralgicznych miejsc pod podłogą techniczną, gdzie istnieje największe ryzyko wycieku. Dzięki temu zapewnia się najszybszą możliwą reakcję na awarię.
Instalacja w dużych przestrzeniach – jak podzielić przewód sensorowy na strefy monitorowania?
W przypadku dużych przestrzeni pod podłogą techniczną przewody sensorowe mogą być podzielone na oddzielne strefy monitorowania. Pozwala to na precyzyjne określenie lokalizacji wycieku i szybkie podjęcie działań naprawczych bez konieczności przeszukiwania całego obszaru.
Czy można łączyć kilka przewodów sensorowych w jeden system detekcji?
Tak, kilka przewodów TT1000 może być połączonych w jeden system detekcji wycieków pod podłogą techniczną, co pozwala na pokrycie większego obszaru i jeszcze dokładniejsze monitorowanie stanu instalacji wodnych w budynku.
Integracja przewodu sensorowego TT1000 z modułami alarmowymi – precyzyjna lokalizacja wycieków z dokładnością do jednego metra
Detekcja wycieków wody pod podłogą techniczną z wykorzystaniem przewodu sensorowego TraceTek TT1000 w połączeniu z modułami alarmowymi umożliwia precyzyjne określenie miejsca wycieku. System wykrywania jest w stanie zidentyfikować wyciek i wyświetlić jego lokalizację z dokładnością do jednego metra. Jest to możliwe dzięki technologii przewodu sensorowego, który wykrywa obecność wody na całej swojej długości oraz przekazuje sygnał do odpowiedniego panelu alarmowego.
Dzięki zastosowaniu modułu TT-TS12 lub TTSIM, wyciek jest natychmiast rejestrowany i prezentowany na ekranie w postaci czytelnej informacji o jego lokalizacji. W ten sposób operator systemu może błyskawicznie zareagować na problem i skierować odpowiednie służby techniczne do konkretnego miejsca w budynku. Funkcja ta jest szczególnie przydatna w dużych obiektach, gdzie szybkie odnalezienie źródła awarii jest kluczowe dla minimalizacji strat i uniknięcia długotrwałych przestojów.
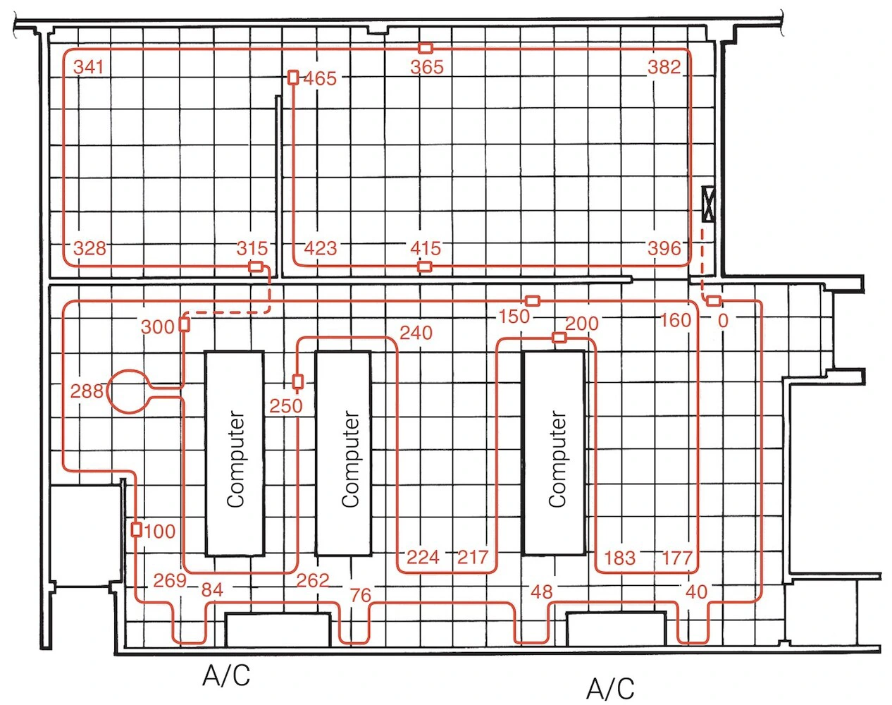
Mapa systemu detekcji wycieków wody pod podłogą techniczną – szybka identyfikacja miejsca awarii

Aby jeszcze bardziej usprawnić proces zarządzania systemem detekcji wycieków, istnieje możliwość stworzenia i wgrania mapy systemu detekcji wycieków wody do panelu alarmowego. Taka mapa odzwierciedla rzeczywisty układ instalacji pod podłogą techniczną, pokazując dokładne rozmieszczenie przewodów sensorowych, urządzeń chłodniczych, rurociągów oraz punktów kontrolnych.
W przypadku wykrycia wycieku, lokalizacja alarmu zostaje automatycznie naniesiona na cyfrową mapę budynku, umożliwiając operatorowi szybkie określenie miejsca awarii. Dzięki temu system zapewnia:
- Szybką reakcję na wyciek – personel techniczny dokładnie wie, gdzie doszło do zdarzenia i może natychmiast podjąć odpowiednie działania.
- Łatwiejsze zarządzanie infrastrukturą budynku – wizualizacja instalacji umożliwia efektywniejsze planowanie działań serwisowych i konserwacyjnych.
- Redukcję czasu przestoju – minimalizacja czasu poszukiwania wycieku pozwala ograniczyć negatywne skutki awarii, szczególnie w obiektach, gdzie nieprzerwane działanie systemów IT ma kluczowe znaczenie.
Optymalizacja systemu detekcji wycieków wody – jak wykorzystać pełne możliwości integracji?
Połączenie przewodu sensorowego TT1000 z modułami alarmowymi i cyfrową mapą budynku pozwala stworzyć zaawansowany, w pełni zintegrowany system monitorowania wycieków wody. Dzięki wykorzystaniu technologii SCADA, Modbus oraz integracji z systemami BMS (Building Management System) możliwe jest:
- Automatyczne wyłączanie pomp wodnych w przypadku awarii.
- Sterowanie zaworami odcinającymi dopływ wody w miejscu wykrytego wycieku.
- Powiadamianie personelu technicznego poprzez SMS, e-mail lub alarm dźwiękowy.
- Rejestrowanie historii zdarzeń i analiza trendów, co pozwala na przewidywanie potencjalnych problemów.
Podsumowanie
Precyzyjna detekcja wycieków wody pod podłogą techniczną jest kluczowa dla ochrony infrastruktury budynku. Połączenie przewodu sensorowego TraceTek TT1000 z modułem alarmowym i cyfrową mapą instalacji zapewnia dokładność lokalizacji wycieku do jednego metra, umożliwiając szybkie podjęcie działań naprawczych. Dzięki integracji z systemami zarządzania budynkiem, system detekcji może działać automatycznie, sterując zaworami i informując odpowiednie osoby o zagrożeniu. To zaawansowane rozwiązanie minimalizuje ryzyko uszkodzeń, poprawia bezpieczeństwo oraz zwiększa efektywność operacyjną budynku.
